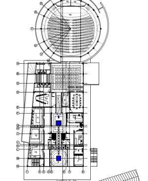
پروژه معماری پایان نامه باغ موزه
پروژه معماری پایان نامه باغ موزه
- تمامی مدارک فنی ( پلان، نما، برش …)
- فایل تریدی کد(قابل ویرایش)
- انیمیشن
- رندرهای با کیفیت
- سایت پلان کلی
- رندر باکیفیت
- رساله
مدارک ترسیمی
- پلان زیرزمین
- پلان طبقه همکف
- پلان طبقه اول
- برش A-A
- پرسپکتیو
- نمای جنوبی
- نمای شمالی
- نمای غربی
- نمای شرقی
- سایت پلان

مدارک فنی
دانلود پایان نامه طراحی هتل سه ستاره همراه با رساله
مدارک موجود پایان نامه طراحی هتل سه ستاره:
- تمامی مدارک فنی (سایت پلان معماری، پلان ها، نما و ...)
- رندرهای با کیفیت V-ray
- رساله معماری در 120 صفحه
- عکس هوایی از سایت
مدارک ترسیمی پایان نامه طراحی هتل سه ستاره:
- سایت پلان معماری
- پلان مبلمان شده طبقه همکف
- پلان مبلمان شده طبقه اول
- پلان مبلمان شده طبقه دوم
- پلان مبلمان شده تیپ پلان ها
- نماهای با کیفیت
- برش های طولی و عرضی

سایت پلان معماری
دانلود پایان نامه کارشناسی طراحی مجتمع رفاهی و گردشگری (تمامی مدارک فنی،رساله کامل،رندرها)
پروژه طراحی مجتمع رفاهی و گردشگری شامل:
- مدارک فنی(نما، برش، سایت، پلان ها، پلان موقعیت، اکس بندی...)
- رندهای با کیفیت V-ray
- پاورپوینت ارائه پروژه
- رساله کامل معماری
- پوستر(فایل لایه باز فتوشاپ)
- عکس ماکت
- پرسپکتیو به صورت dwg
فهرست مطالب رساله پروژه طراحی مجتمع رفاهی و گردشگری:
- فصل اول: کلیات تحقیق
- فصل دوم: مفاهیم مرتبط با موضوع و مبانی نظری معماری
- فصل سوم: بررسی بستر طرح
- فصل چهارم: نمونه های موردی
- فصل پنجم: استانداردها وضوابط طراحی
- فصل ششم: برنامه فیزیکی طرح
- فصل هفتم: ساختار فنی واجرای
- فصل هشتم: روند طراحی و مستندات طرح

مجتمع رفاهی و گردشگری
دانلود پروژه طراحی بازار سنتی
مدارک موجود درپروژه طراحی بازار سنتی
- تمامی مدارک فنی
- فایل تری دی مکس
- رندر های با کیفیت ویری
- روند طراحی پروژه
- پوستر (شیت)
- فایل فتوشاپ psd
مدارک ترسیمی
- پلان پارکینگ
- پلان طبقه همکف
- پلان طبقه اول
- پلان های اندازه گذاری
- پلان های ستون گذاری و تیرریزی
- نما جنوبی
- نما شمالی
- نما غربی
- نما شرقی
- برش A-A
- برش B-B
دانلود پروژه طراحی بازار محله (مدارک فنی+ رندرها+ شیت بندی)
مدارک موجود درپروژه بازارمحله شامل:
- تمامی مدارک فنی
- رندرهای با کیفیت داخلی و خارجی
- شیت بندی
مدارک ترسیمی:
- سایت پلان معماری
- پلان مبلمان شده طبقه همکف
- پلان مبلمان شده طبقه اول
- پلان بام
- نماهای با کیفیت
- برش های طولی و عرضی

سایت پلان معماری
دانلود پروژه طراحی ترمینال مسافربری
مدارک موجود پروژه طراحی ترمینال مسافربری:
- تمامی مدارک فنی به صورت dwg
- رندرهای با کیفیت V-ray
- پاورپوینت روند طراحی
- رساله معماری
مدارک ترسیمی پروژه طراحی ترمینال مسافربری:
- سایت پلان معماری
- پلان مبلمان شده طبقه همکف
- نماهای با کیفیت
- پرسپکتیو خارجی
- روند طراحی و رسیدن به حجم نهایی به صورت dwg

سایت پلان معماری
دانلود پروژه طراحی خانه فرهنگ و هنر
مدارک موجود پروژه طراحی خانه فرهنگ و هنر:
- تمامی مدارک فنی
- رندرهای با کیفیت
- ۴ عدد شیت (پوستر)
- فایل شیت خام
- فایل تری دی مکس
- روند آنالیز فرم
مدارک ترسیمی:
- پلان نمایشگاه موقت و دائمی
- پلان ساختمان اموزشی و امفی تئاتر
- پلان رستوران
- پلان اداری
- پلان ساختمان تجاری
- برش A-A
- برش B-B
- پلان اندازه گذاری

پلان نمایشگاه
دانلود پروژه طراحی رصدخانه
مدارک موجود در پروژه طراحی رصدخانه
- تمامی مدارک فنی
- رندر های با کیفیت
- برش و نما
مدارک ترسیمی
- پلان طبقه همکف
- پلان طبقه اول
- نما به صورت رتدر
- برش به صورت رندر
دانلود پروژه طراحی مجموعه آموزشی تجاری صنایع دستی
مدارک موجود پروژه طراحی مجموعه آموزشی تجاری صنایع دستی:
- تمامی مدارک فنی
- رندرهای قوی با V-ray
- رساله کامل
سرفصل های رساله
- فصل اول : کلیاتی در مورد صنایع دستی
- فصل دوم: مطالعات محیطی
- فصل سوم مطالعات معماری
- فصل چهارم : مطالعات تحلیلی
- فصل پنجم :اصول فنی و استانداردهای طراحی در فضاهای مجموعه
- فهرست منابع
- فهرست اشکال
- فهرست جداول
دانلود پروژه طراحی موزه موسیقی (تمامی نقشه ها+رندهای با کیفیت+رساله)
مدارک موجود پروژه طراحی موزه موسیقی:
- مدارک فنی (پلان+ نما + برش+ سایت و...)
- رندهای با کیفیت V-ray
- پاورپوینت ارائه
- رساله معماری در 183 صفحه
مدارک ترسیمی پروژه طراحی موزه موسیقی:
- سایت پلان معماری
- پلان مبلمان شده طبقه همکف
- پلان مبلمان شده طبقه اول
- 4 عدد نمای با کیفیت
- 2 عدد برش

سایت پلان معماری
دانلود پروژه طراحی هنرستان فنی (همراه با تمامی مدارک فنی)
مدارک موجود پروژه طراحی هنرستان فنی
- پلان فنی، نما ، برش
- سایت پلان
- فایل تری دی ( مکس)
- فایل فتوشاپ
- رندر نهایی
دانلود پروژه طرح 5 طراحی مجتمع مسکونی در اقلیم گرم و خشک
مدارک موجود پروژه طراحی مجتمع مسکونی:
- سایت پلان به صورت رندر
- پلان های مبلمان شده (3 تیپ پلان)
- نماهای با کیفیت همگن با اقلیم (استفاده از مصالح بوم آور) به صورت رندر
- رندر های با کیفیت V-ray
- فایل 3d اتوکدی
- روند طراحی به عکس از ماکت
- پروژه طراحی مجتمع مسکونی دارای 2 پاورپوینت می باشد.
- پاورپوینت اول با 62 اسلاید در مورد استانداردها و ضوابط طراحی مجتمع مسکونی
- پاورپوینت دوم در 15 اسلاید برنامه فیزیکی کاملی را برای شما مهیا کرده ایم.
پلان طبقه اول مجتمع مسکونی دانلود پروژه کامل طراحی فرهنگسرا کودک (پایان نامه کارشناسی)
مدارک موجود پروژه طراحی کامل فرهنگسرا کودک:
- مدارک فنی {پلانن-نما-برش-سایت پلان}
- رساله
- رندر باکیفیت
- فایل رویت
- شیت
پلان های ترسیمی:
- پلان طبقه 2-زیر زمین
- پلان طبقه 1-زیرزمین
- پلان طبقه همکف
- پلان طبقه اول
- پلان طبقه دوم
- برشA-A
- برشB-B
- برشC-C
- نمای شمالی
- نمای جنوبی
- نمای شرقی
- نمای غربی
- سایت پلان
دانلود پروژه کامل مجتمع مسکونی 70 واحدی همراه با رساله
مدارک موجود پروژه کامل مجتمع مسکونی 70 واحدی :
- سایت پلان معماری
- پلان مبلمان شده پارکینگ
- پلان مبلمان شده تیپ طبقات
- پلان اندازه گذاری پارکینگ
- پلان اندازه گذاری تیپ طبقات
- پلان بام ( Roof plan)
- پلان تیر ریزی
- نماهای با کیفیت
- برش های طولی و عرضی
- رندهای با کیفیت V-ray
- رساله ای کلامل با 174 صفحه

پلان تیپ آپاتمانی مجتمع مسکونی
دانلود پروژه کامل مجموعه اقامتی
مدارک موجود در پروژه کامل مجموعه اقامتی
- تمامی مدارک فنی ( پلان، نما، برش …)
- سایت پلان
- برش های طولی و عرضی از ساختمان و محوطه
- فایل لومیون (قابل ویرایش)
- فایل رویت (قابل ویرایش)
- رندرهای با کیفیت
مدارک ترسیمی پروژه معماری
- پلان زیرزمین
- پلان طبقه همکف
- پلان اندازه گذاری
- برش A-A
- برش B-B
- برش C-C
- نمای جنوبی
- نمای شمالی
- نمای غربی
- نمای شرقی
- سایت پلان

دانلود پروژه کامل مجموعه اقامتی
دانلود پروژه معماری طراحی خانه خط و خوشنویسی
مدارک موجود پروژه معماری طراحی خانه خط و خوشنویسی:
- تمامی مدارک فنی
- پلان طبقه زیر زمین با فرمت dwg
- پلان طبقه همکف با فرمت dwg
- پلان طبقه اول با فرمت dwg
- برش طولی با فرمت dwg
- پلان ستون گذاری
- تمامی مدارک فنی به صورت پی دی اف و اتوکدی می باشد
- رندر های با کیفیت V-ray
- دارای رساله

پلان طبقه همکف
دانلود پروژه معماری طراحی خانه سالمندان
مدارک موجود پروژه معماری طراحی خانه سالمندان:
- تمامی مدارک فنی(سایت پلان، پلان های مبلمان شده، نماها، برش ها و ...)
- رندرهای با کیفیت، V-ray
- فایل تری دی (لومیون)
- شیت بندی (پوستر)
- فایل خام فتوشاپ
-
مدارک ترسیمی:
- سایت پلان معماری
- پلان مبلمان شده طبقه زیر زمین
- پلان مبلمان شده طبقه همکف
- پلان مبلمان شده طبقه اول
- پلان مبلمان شده طبقه دوم
- برش A-A
- برش B-B
- نما شمالی
- نمای غربی
دانلود پروژه معماری طراحی فرهنگسرا هنر ایرانیان (پایان نامه کارشناسی)
مدارک موجود پروژه معماری طراحی فرهنگسرا هنر ایرانیان:
- تمامی مدارک فنی (تمامی پلان ها، برش ها، نما، سایت پلان، پلان ستون گذاری و...)
- 18 عدد رندر با کیفیت v-ray
- رساله کامل معماری 140 صفحه و با فرمت Word
- 3 عدد شیت معماری (پوستر)
مدارک ترسیمی:
- سایت پلان معماری
- پلان مبلمان شده طبقه همکف
- پلان مبلمان شده طبقه اول
- 4 عدد نمای با کیفیت (شمالی، جنوبی، شرقی، غربی)
- برش A-A
- برش B-B
- برش C-C

سایت پلان پروژه معماری طراحی فرهنگسرا هنر ایرانیان
دانلود پروژه معماری طراحی کتابخانه عمومی (پایان نامه کارشناسی)
مدارک موجود پروژه معماری طراحی کتابخانه عمومی :
- تمامی مدارک فنی (سایت پلان، پلان ها ، نماها ، برش و ...)
- رندرهای با کیفیت V-ray
- پرسپکتیو داخلی و خارجی
- رساله ای کامل با 139 صفحه
فهرست مطالب رساله پروژه طراحی کتابخانه عمومی
- چکیده
- فصل اول شناخت موضوع طرحی
- فصل دوم شناخت بستر طرح
- فصل سوم شناخت فضاهای کتابخانه
- فصل چهارم برنامه فیزیکی
- فصل پنجم روند طراحی و معرفی طرح نهایی

پلان مبلمان شده طبقه همکف
دانلود پروژه معماری طراحی هتل 3 ستاره
مدارک موجود پروژه معماری طراحی هتل سه ستاره
- تمامی پلان های معماری به صورت کامل و مبلمان شده
- پلان های سازه ای
- برش ها و نماهای معماری
- رندر های با کیفیت ویری
- فایل شیت معماری به صورت عکس
- فایل تری دی مجموعه به صورت فایل نرم افزار رویت
دانلود پروژه معماری طراحی هتل 5 ستاره (پایان نامه کارشناسی)
مدارک موجود پروژه معماری طراحی هتل 5 ستاره:
- مدارک فنی کامل (سایت پلان، نما، برش، پلان ها و ...)
- رندرها با کیفیت V-ray
- رساله کامل برای مقطع کارشناسی در 172 صفحه
مدارک ترسیمی:
- سایت پلان معماری
- پلان مبلمان شده طبقه زیرزمین
- پلان مبلمان شده طبقه همکف
- پلان مبلمان شده تیپ طبقات
- پلان مبلمان شده باغ بام ها
- نماهای با کیفیت
- برش های طولی و عرضی

سایت پلان معماری
دانلود پروژه معماری طراحی هنرستان فنی حرفه ای
مدارک موجود در پروژه معماری هنرستان فنی و حرفه ای :
- مدارک فنی ( پلان ها، نماها، برش ها، سایت پلان، برش های سه بعدی و ...)
- رندر های باکیفیت V-ray
- فایل سه بعدی (اسکیچاپ)
مدارک ترسیمی در پروژه معماری هنرستان فنی و حرفه ای :
- سایت پلان معماری
- پلان مبلمان شده طبقه زیرزمین
- پلان مبلمان شده طبقه همکف
- پلان مبلمان شده طبقه اول
- پلان مبلمان شده طبقه دوم
- 4 عدد نما از چهار جهت
- 3 عدد برش طولی و عرضی
- برش های پرسپکتیوی

سایت پلان معماری
دانلود پروژه معماری کامل طراحی کتابخانه عمومی (پایان نامه کارشناسی)
مدارک موجود پروژه معماری کامل طراحی کتابخانه عمومی:
- تمامی مدارک فنی
- اسکیس های با کیفیت دست آزاد
- عکس هایی از روند طراحی فرم
- عکس های ساخته شده ماکت
- رندرهای با کیفیت خارجی
- رندر های داخلی با کیفیت از فضاهای داخلی مجموعه ۶ عدد رندر داخلی
- فایل تری دی خارجی با فرمت تری دی مکس
- فایل تر دی داخلی با فرمت تری دی مکس
- پوستر (شیت بندی)
- رساله معماری در 235 صفحه
رساله کامل پروژه کامل کتابخانه عمومی
- سرفصل های رساله
- فصل اول: کلیات
- فصل دوم: ضوابط و استانداردهای کتابخانه
- فصل سوم : بررسی و پیشنهاد سیستم سازه ، تاسیسات و مصالح
- فصل چهارم : مطالعات نمونههای مشابه
- فصل پنجم : معرفی بستر طرح
- فصل ششم : معرفی طرح
دانلود رساله طراحی مجتمع مسکونی
مهمنرین سرفصل های رساله طراحی مجتمع مسکونی:
- چکیده
- مقدمه
- فصل اول: کلیات طرح (بیان مسئله، روش تحقیق، فرآیند تحقیق و...)
- فصل دوم: ادبیات موضوع ( تعریف مسکن، مفاهیم کلی مرتبط با نیازها و هدف های کلی مسکن و...)
- فصل سوم: مطالعات اقلیمی شهر ایلام ( شما میتوانید اقلیم تمامی شهرهای ایران را از همین وبسایت دانلود کنید.)
- فصل چهارم: تبین طرح و معماری و ضوابط طراحی ( شامل استانداردها و اصول طراحی)
- فصل پنجم: فرآیند طراحی
- منابع
دانلود رساله کامل اداره پست
فهرست مطالب رساله طراحی اداره پست :
- فصل اول: کلیات موضوع
- فصل دوم: آشنایی با پست وخدمات پستی
- فصل سوم: آشنایی با بستر طرح
- فصل چهارم: شناخت فضاهای اداره پست
- فصل پنجم: برنامه فیزیکی و کالبدی طرح
- فصل ششم: ارائه طرح پیشنهادی
دانلود رساله کامل ترمینال مسافربری
فهرست مطالب رساله کامل ترمینال مسافربری
فصل اول
- تعريف ترمينال
- تاريخچه استفاده از اتوبوس
- حمل و نقل مسافر در كشور
- ضرورت طرح
- اهداف طرح
دانلود رساله کامل فرهنگسرا
فصل برنامه فیزیکی دانلود رساله کامل فرهنگسرا
- حوزه ی آموزشی دانلود رساله کامل فرهنگسرا
- حوزه ی استعداد سنجی دانلود رساله کامل فرهنگسرا
- حوزه ی نمایش
- حوزه ی انجمنها دانلود رساله کامل فرهنگسرا
- حوزه ی اداری
- حوزه ی تجاری
- حوزه ی خدمات رسانی رساله کامل فرهنگسرا
دانلود رساله کامل کتابخانه
فهرست مطالب رساله کامل کتابخانه
- فصل اول شناخت موضوع طرحی
- فصل دوم شناخت بستر طرح
- فصل سوم شناخت فضاهای کتابخانه
- فصل چهارم برنامه فیزیکی
- فصل پنجم روند طراحی و معرفی طرح نهایی
دانلود رساله کامل مجتمع تجاری
علاقه و انگيزه
موضوع تجاري با توجه به قدرت بيبديل اقتصاد در عصر ما موضوعي ويژه در طراحي معماري به حساب ميآيد. در عصري كه توجه به هر مسأله به ميزان صرفه و بازده اقتصادي آن ميباشد، پيداست كه امكان پرداختن به نگاههاي خاص در معماري مجموعههاي تجاري تقويت ميگردد. به همين دليل انتخاب يك مجموعه براي طراحي معماري خود به خود جذابتر از موضوعات ديگر ميباشد. از خصوصيات دنياي امروز نقش انساني براي بهتر زيستن است و رفع نيازهاي زندگي از رسالتهاي يك معمار، معماري امروز آينه تمام نماي اجتماع ميباشد. اين نيازهاي اقتصادي عصر جديد متأثر از انقلابهاي تكنولوژيك ميباشد. بديهي است پاسخگويي به نيازهاي ضروري و در عين حال متنوع مطاع ايجاد مركز ابنيه خدمات گسترده به صورت متمركز ميباشد و دليل انتخاب مجتمع تجراي براي اين طرح نهايي ميباشد.فهرست مطالب رساله کامل مجتمع تجاری
بخش اول: مطالعات پايه
فصل 1 تعریف بازار- ادبیات بازار- واژه بازار از منظر لغوی- 8
- واژه بازار از منظر کالبدی- 9
- واژه بازار از منظر اقتصادی- 10
- واژه بازار از منظر اجتماعی 10
- تعریف امروزی بازار- 10
دانلود رساله کامل مجموعه ایستگاه راه آهن
چکیده ی رساله کامل مجموعه ایستگاه راه آهن
دردنیای امروزه حمل ونقل یکی از مهمترین مسائل روز دنیاست ومهمترین بخش آن را میتوان حمل ونقل ریلی یاراه آهن دانست باید گفت که دردنیا امروز یکی ازمسائل مهم در امرطراحی یک راه آهن بایدسه نکته مهم را درنظر داشت که عبارت است از:پویایی (حرکت فیزیکی)، سیالیت(حرکت بصری) ،مکث(سکون) می باشد. باتوجه به موقعیت قرارگیری سایت مورد نظر باید گفت که مکان فوق یکی ازمکان های است که ازلحاظ اقلیمی دارای یکسری مسائل وضوابط مربوط به آن بوده که سعی شده درطراحی مکان فوق لحاظ قرار گیرد. مکان سایت مورد نظر براساس میزان تقاضای مسافر وساختار شبکه شهری منطقه بستگی داشته ونحوه دسترسی به آن یکی از مسائل مهم وضروری می باشد. باتوجه به تاریخچه راه آهن در جهان وایران می توان به اهمیت روز افزون راه آهن پی برد اگرچه عصرطلایی آن قرن 19 می دانند ولی مزیت فوق العاده راه آهن مثل ارزانی، امنیت، نظم، قابلیت حمل کالا، استهلاک پائین و ضررهای زیست محیطی ارزش این وسیله مهم را دو صد چندان کرده است. هدف اصلی شبکه راه آهن دراجرای پروژه های جدید اتصال دروازه های راه آهن مرزی کشور به یکدیگر است. ایستگاه راه آهن ازیک طرف یا انسان درارتباط است واز طرف دیگر بالوکوموتیو (قطار) که مظهر ماشین است مرتبط می باشد. بنابراین دردل ایستگاه راه آهن نوعی ایستگاه راه آهن نوعی دوگانکی وتضاد وجوددارد که باید به کمک قدرت خلاقانه طراح به وحدت برسد. همچنین سیرکولاسیو ن ودیاگرام عملکردی فضاها وارتباط فضاهاباهم مورد نقدوبررسی قرارگرفته اند.دانلود رساله کامل مرکز سلامت و ترک اعتیاد
فهرست سرفصل های رساله کامل مرکز سلامت و ترک اعتیاد
- فصل 1 بیان موضوع
- فصل 2 ادبیات طرح
- فصل3 مبانی نظری
- فصل 4 نمونه های موردی
- فصل 5 مطالعات زمینه
- فصل 6 استانداردها
- فصل 7 برنامه فیزیکی
- فصل 8 سایت و طراحی
- فصل 9 مدارک فنی و سه بعدی طرح
تعریف طرح
به علت افزایش روز افزون اعتیاد در جامعه ومبتلا شدن قشر وسیعی از جوانان، نیاز به مراکزی برای آگاه سازی ودرمان معتادان دیده می شود .در این طرح سعی شده که با دخالت معماری در روند درمان معتادان، به فرد بیمارانگیزه ای تزریق شودکه فرد با ورود به این مرکز نسبت به وضع موجود حس خوشایندی پیدا کند وفضا را به گونه ای تصور کند که بتواند در آن به اهدافش برسد .که این موضوعبا طراحی مجموعه به صورت بخش بخش و مرحله مرحله امکان پذیر است. تقسیم بخش های درمانی به سه بخش، که نشان دهنده ی مراحل ترک است وفرد را تشویق به رسیدن به مراحل بالاتر ورسیدن به پاکی می کند. طراحی سایت مجموعه رساله کامل مرکز سلامت و ترک اعتیاد به صورت پارک است که به فرد احساس آرامش می دهد وباعث می شود فرد خود داوطلبانه به مرکز مراجعه نماید .دانلود رساله کامل موزه فرش
سرفصل های رساله کامل موزه فرش
- کلیات موضوع
- شناخت موضوع
- تاریخچه فرش
- آشنایی با بستر طرح
- برنامه عملکردی وفیزیکی
- روند شکل گیری طرح
مقدمهرساله
در جهت تهیه مطالعات موزه روند مطالعات ما به شکلی است که ابتدا یکسری تعاریف از موزه داریم که به ما کمک میکند موضوع طرح و مطالعات را بهتر درک کنیم که به عنوان فصل دوم معرفی میگردد. در ادامه پس از مطرح کردن گزیدهای از تاریخچه موزه در جهان و ایران،به انواع موزهها پرداخته میشود.و همچنین در فصل سوم تاریخچه فرش و همچنین نمونههای داخلی و خارحی که کمک زیادی به طراحی پروژه میکند را مورد بررسی قرار دادهایم. آشنایی با بستر و مکانیابی صحیح جهت احداث موزه در فصل چهارم ارائه شده است. توصیهها و الزامات طراحی موزه در فصل پنجم ارائه گردیده که با مطالب فصل برنامه عملکردی و فیزیکی، مقدمات طراحی موزه کامل میشود و در ادامه دیاگرامهای موزه را ارائه دادهایم.دانلود رساله کامل هتل 3 ستاره
فهرست مطالب رساله کامل هتل 3 ستاره :
- فصل اول: کلیات پژوهش
- فصل دوم: مطالعات کلی بستر طراحی
- فصل سوم: بررسی نمونه های مشابه
- فصل چهارم: ظوابط، استانداردها، معیارهای طراحی و معرفی فضاها
- فصل پنجم: روند شکل گیری طرح
دانلود رساله کامل هتل 5 ستاره
سرفصل های رساله کامل هتل 5 ستاره :
- فصل اول شناخت موضوع
- فصل دوم بررسی اقامتگاه از گذشته تا امروز
- فصل سوم مطالعات محیطی استان و شهرستان
- فصل چهارم شناخت اقلیم منطقه
- فصل پنجم استانداردهای فضایی و ضوابط فعالیتهای هتل
- فصل ششم بررسی نمونه های موردی
- فصل هفتم برنامه ریزی فیزیکی و کالبدی طرح
- فصل هشتم روند شکلگیری طرح
دانلود رساله معماری بیمارستان
فهرست مطالب رساله معماری بیمارستان
- چکیده 1
- مقدمه: 2
- فصل اول: اقليم و طراحی
- فصل دوم : فرايند طراحي
- فصل سوم : بررسي ساختار و ويژگي هاي طراحي
- فصل چهارم : استانداردها و ضوابط طراحي
- فصل پنجم : نمونه هاي بيمارستاني
- فصل ششم : طرح نهایی
دانلود رساله معماری خانه امن (اقامتگاه افراد فراری)
- شناخت زن و تاریخچه و ویژگی هایش
- شناخت دختران فراری و دلیل فرار دختران
- توجیه لزوم وجود چنین مراکزی
- بررسی ملزومات معماری
فهرست مطالب رساله معماری خانه امن
- فصل اول: مطالعات شناختی
- فصل دوم: مطالعات اقلیمی
- فصل سوم: زن در نگاه کلی
- فصل چهارم: خشونت زنان
- فصل پنجم: جامعه و رفتار ها
- فصل ششم: فرار دختران از خانه
- فصل هفتم: برنامه ریزی فیزیکی پروژه
- فصل هشتم: مطالعات طراحی
دانلود رساله معماری طراحی خانه خط و خوشنویسی
فهرست مطالب رساله معماری طراحی خانه خط و خوشنویسی
- فصل اول رساله معماری طراحی خانه خط و خوشنویسی : کلیات پژوهش
- فصل دوم رساله معماری طراحی خانه خط و خوشنویسی:مبانی نظری
- فصل سوم رساله معماری طراحی خانه خط و خوشنویسی :شناخت موضوع
- فصل چهارم رساله معماری طراحی خانه خط و خوشنویسی : شناخت اقلیمی
- فصل پنجم رساله معماری طراحی خانه خط و خوشنویسی : ضوابط طراحی
- فصل ششم رساله معماری طراحی خانه خط و خوشنویسی : برنامه ریزی طرح
- بخش هفتم رساله معماری طراحی خانه خط و خوشنویسی :طراحی
دانلود رساله معماری طراحی مدرسه ابتدایی
فهرست مطالب رساله معماری طراحی مدرسه ابتدایی:
- فصل اول رساله معماری طراحی مدرسه ابتدایی : بيان موضوع طراحي
- فصل دوم رساله معماری طراحی مدرسه ابتدایی : مطالعات پايه
- فصل سوم رساله معماری طراحی مدرسه ابتدایی : کودک
- فصل چهارم رساله معماری طراحی مدرسه ابتدایی : مطالعات تطبيقي
- فصل پنجم رساله معماری طراحی مدرسه ابتدایی : مطالعات زمينه
- فصل ششم رساله معماری طراحی مدرسه ابتدایی : معرفي سايت پروژه
- فصل هفتم رساله معماری طراحی مدرسه ابتدایی : مباني طراحي معماري پروژه
- فصل هشتم رساله معماری طراحی مدرسه ابتدایی : مدارك و نقشه هاي طرح
پروژه معماری طراحی مدرسه ابتدایی دانلود رساله معماری طراحی مرکز هنرهای تجسمی
فهرست مطالب رساله معماری طراحی مرکز هنرهای تجسمی
- فصل اول: کلیات
- 1-1-خلاصه طرح...2
- 2-1-تعریف مسئله و بیان سؤالهای اصلی تحقیق...2
- 3-1-اهداف تحقیق...3
- 4-1-معرفی روش و فرآیند طراحی.....3
- 5-1-فضاهای پیشنهادی...4
- فصل دوم: مبانی نظری
- 1-2-تعریف معماری.....6
- 2-2-مفهوم فضا.....6
- 3-2-نگرش سامانهای درمعماری.....6
- 4-2-سامانههای بنیادی در معماری.....6
- 5-2-فضای موسیقیایی در نقاشی.....7
- 6-2-جامعهشناسی هنر....8
- فصل سوم: ادبیات موضوع
- 1-3-ادبیات موضوع.....11
- 2-3-شناخت موضوع..... 23
- فصل چهارم: مکان شناسی طرح
- 1-4-استان.......39
- 2-4-شناخت شهرستان.....51
- فصل پنجم: بررسی نمونههای موردی
- 1-5-موزه هنرهای معاصر تهران.....59
- 2-5-مرکز هنرهای تجسمی Black family.......63
- 3-5-مرکز هنرهای نمایشی کره جنوبی........66
- 4-5-مرکز ژرژپمپیدو.... 70
- 5-5-نتیجه.......74
- 6-5-جدول برنامه فیزیکی ......75
- فصل ششم: ابعاد واستانداردها
- 1-6-ابعاد واستانداردها....77
- 1-1-6-گالریها......77
- 2-1-6-آمفی تئاتر....80
- 3-1-6-کتابخانه.....83
- 2-6-برنامه فیزیکی.....87
- جداول مربوط به فضاهای مجموعه....89
- فصل هفتم: روند طراحی
- مقدمه......95
- تحلیل سایت .....96
- ایدههای طرح.....96
- اسکیسها.....98
- ارائه نقشههای مرکز هنرهای تجسمی.....100
- تصاویر.....109
- منابع و ماخذ ......111
دانلود رساله معماری فرهنگسرا
فهرست مطالب رساله معماری فرهنگسرا:
- مقدمه
- فصل اول : مطالعات پایه
- فصل دوم : اشنایی با فرهنگسرا
- فصل سوم : استانداردهای طراحی
- فصل چهارم ریز فضا های مختلف فرهنگسرا
- فصل پنجم: ویژگی های محیط طرح
- فصل ششم برنامه فیزیکی پروژه
- فصل هفتم طراحی و کانسپت
دانلود رساله معماری مجتمع تجاری تفریحی
فهرست مطالب رساله معماری مجتمع تجاری تفریحی
- مقدمه(طرح تحقیق) . 1
- طرح مسئله.1
- مبانی نظری.2
- فصل اول: (گردشگری و توریسم)
- فصل دوم : (شناخت پتانسيل هاي مکان)
- فصل سوم( شناخت مراکز تجاری)
- فصل چهارم مباني نظري: (کنکاش پیرامون رابطه معماری و طبیعت)
- فصل پنجم: (شناخت بستر طرح)
- فصل ششم: (طراحي و تبيين طرح)
دانلود رساله معماری مرکز همایش های مردمی
فهرست مطالب موضوعات مورد بحث در رساله معماری مرکز همایش های مردمی:
این رساله در 5 حوزه تقسیم بندی شده که در مجموع در 5 فصل به طور مفصل به موضوعات لازم پرداختیم:- فصل اول رساله معماری مرکز همایش های مردمی: مطالعات پایه
- فصل دوم رساله معماری مرکز همایش های مردمی: بررسی تعاریف ـ و ضوابط عملکـردی کیفی
- فصل سوم رساله معماری مرکز همایش های مردمی: نیازهای فضایی و لازمه های کلی مراکز گردهمایی
- فصل چهارم رساله معماری مرکز همایش های مردمی: بررسی فضاهای جمعی و سابق آن ها در ایران و جهان
- فصل پنجم رساله معماری مرکز همایش های مردمی: بررسی اجمالی اصول پایدار درمعماری ایران
دانلود رساله معماری مسجد جامع و مجتمع فرهنگی تبلیغی و آموزشی
فهرست مطالب رساله معماری مسجد جامع و مجتمع فرهنگی تبلیغی و آموزشی:
- فصل اول: كليات
- فصل دوم : مبانی نظری و شناخت موضوع
- فصل سوم: استانداردها و نمونههای موجود
- فصل چهارم : مطالعات سایت
- فصل پنجم : نتيجهگيري
- فصل ششم: روند طراحي
دانلود طراحی اداره پست همراه با رساله کامل (پایان نامه کارشناسی)
مدارک موجود پروژه معماری طراحی اداره پست:
- تمامی مدارک فنی (سایت پلان، پلان ها، نماها، برش ها و ...)
- رندرهای با کیفیت
- فایل شیت بندی
- روند طراحی
- رساله معماری کامل در 126 صفحه
مدارک ترسیمی پروژه معماری طراحی اداره پست:
- سایت پلان معماری
- پلان مبلمان شده طبقه زیرزمین
- پلان مبلمان شده طبقه همکف
- پلان مبلمان شده طبقه اول
- 3 عدد نمای با کیفیت
- 2 عدد برش طولی و عرضی
- پلان آکس بندی

سایت پلان معماری
دانلود طراحی باغ موزه فرش
مدارک موجود طراحی باغ موزه فرش
- پلان ها و برش ها و نماهای معماری به صورت حرفه ای و مبلمان شده در قالب فایل pdf
- رندرهای معماری به صورت حرفه ای
- شیت معماری با فرمت فایل فتوشاپ و فرمت psd

پلان طبقه همکف
کاملترین پروژه کتابخانه عمومی
کاملترین پروژه کتابخانه عمومی
- تمامی مدارک فنی ( پلان، نما، برش …)
- فایل لومیون (قابل ویرایش)
- فایل رویت (قابل ویرایش)
- رندرهای با کیفیت
- سایت پلان کلی
- رساله
مدارک ترسیمی پروژه معماری
- پلان زیرزمین
- پلان طبقه همکف
- پلان طبقه اول
- پلان طبقه دوم
- پلان طبقه سوم
- پلان اندازه گذاری
- پلان بام
- برش A-A
- برش B-B
- نمای جنوبی
- نمای شمالی
- نمای غربی
- نمای شرقی

کاملترین پروژه کتابخانه عمومی
طرح های نهایی دانشجویان را ملزم به حل مستقل یک تکالیف طراحی در سطح ساختمان یا مسکن می کند. تعیین تکلیف می تواند برای یک ساختمان جدید یا بازسازی یک ساختمان موجود یا یک کل شهرک مسکونی باشد. تمرکز اصلی بر روی بهینه سازی کم مصرف انرژی در ساختمان و فناوری تأمین است. با این حال این وظیفه می تواند جنبه های دیگر پایداری را شامل شود مانند مسائل اجتماعی و فرهنگی مربوط به ساختمانها و سازه های اسکان مسکن جنبه های اکولوژیکی بیشتر و عوامل اقتصادی این طرح شامل بحث در مورد آغاز تجزیه و تحلیل تأمل در جنبه های ارائه روند طراحی، عملکرد، شکل زمینه تاریخی یا فرهنگی و ساخت است.
طرح های نهایی
دانشجویان می توانند جنبه های اساسی یک طراحی معماری با مصرف انرژی و پایدار را تشخیص دهند. آنها می توانند اصول مربوطه و موضوعات مرتبط را به طور مستقل پردازش كنند. آنها می توانند بین نتایج تحقیق، تجزیه و تحلیل و نتیجه گیری و طرح های خود پیوند برقرار کنند. آنها تخصص لازم را در بحث این وابستگی های متقابل و اثبات استدلال خود با استفاده از رسانه های مناسب دارند.
اهداف صلاحیت
پایان نامه کارشناسی دانشجویان را برای بیان پیشنهاد و دفاع از ایده ها و مواضع خود در مورد معماری و همچنین تعامل با متخصصان به عنوان همسالان و همکاران آماده می کند. نقطه اوج برنامه درسی پایان نامه دوره کارشناسی یک ساله است که نسل بعدی معماران و طراحان را به چالش می کشد تا موقعیت های محکم، شکل گیری چشم اندازهای تازه و پیشنهاد راه حل برای مسائل برجسته معماری را به دست آورند.
در طول سال آخر تحصیل دانشجویان ملزم به اتخاذ مواضع انضباطی در معماری هستند که از طریق توسعه یک طرح ساختمان بیان می شود. این مدل آموزشی دانشجویان را قادر می سازد تا بین چارچوب های حدسی و ملاحظات ملموس تقابل معماری ساخته شوند.
ترم اخر کارشناسی
در ترم آخر برنامه دانشجویان همچنان به تکمیل موقعیت خود و تعریف چالش های طراحی می پردازند که هم از دیدگاه شخصی آنها و هم از نظر مسائل جهانی مربوط به نظم و عمل معماری باشد. دانشجویان سپس سایت ها را انتخاب کرده و برنامه هایی را ایجاد می کنند و در نهایت طرح های شماتیک را برای ساختارهایی که از نظر فکری و ساختاری مشکلات اولیه طراحی خود را حل می کنند تصور می کنند. دانشجویان به طور منظم پروژه های در حال انجام خود را هنگام بررسی با هدف پرورش جهت بحث ارائه می دهند.
عنوان پایان نامه کارشناسی ارشد
پایان نامه کارشناسی ارشد یک سکوی عمومی است که در آن دانشجویان شغل خود را به عنوان معمار آغاز می کنند. پروژه معماری پایان نامه. که منجر به مکالمه در مورد نقش فعلی و در حال تکامل معماری می شود در مورد چگونگی شکل گیری نوآوری نظری و فناوری در آینده محیط ساخته شده حدس می زند. در طول پایان نامه دانشجویان پروژه های نهایی خود را به هیئت داوران هیئت علمی و مهمان متشکل از برخی از برترین معماران منتقدان و نظریه پردازان در این زمینه ارائه می دهند.
نحوه انتخاب موضوع پایان نامه معماری
هنگامی که دانشجویان معماری به سال آخر معماری می روند شب های بی خواب و کمبود عمومی زندگی اجتماعی، با مشکل بزرگ انتخاب یک عنوان پایان نامه مواجه می شوند. موضوعات زیادی برای انتخاب وجود دارد اما علاقه شخصی به یک موضوع خاص فقط یکی از عوامل زیادی است که باید در این تصمیم تأثیر بگذارد. دانشجویان باید چندین سوال دیگر از خود بپرسند: آیا موضوع به اندازه کافی قابل توجه است؟ آیا به اندازه کافی گسترده است؟ آیا پروژه واقعاً قابل انجام است؟
این روند می تواند دلهره آور باشد زیرا این تصمیم عواقب زیادی دارد. گاهی اوقات انتخاب موضوع به تنهایی می تواند تفاوت بین موفقیت و عدم موفقیت یک پایان نامه باشد. با توجه به عوامل زیادی که باید در نظر گرفته شود و مهلت مقرر بسته می شود دانشجویان به راحتی تصمیماتی می گیرند که بعدا پشیمان می شوند. در اینجا هشت نکته برای کمک به شما در انتخاب آگاهانه موضوع وجود دارد.
جرات غیر اصیل بودن داشته باشید
کار پایان نامه در سطح کارشناسی با کارشناسی ارشد یا دکترا بسیار متفاوت است و درک منطق گنجاندن آن در برنامه درسی مهم است. کار در سطح تحصیلات تکمیلی یا دکترا معمولاً خواستار شناسایی “شکاف دانش موجود” در مورد یک موضوع و یک پیشنهاد اصلی برای رفع این شکاف است اما انتظارات از یک دانشجوی کارشناسی کمتر خواستار است.
این بدان معناست که شما برای ابتکار در سطح کارشناسی لزوماً مجبور نیستید از راه خود خارج شوید. انتخاب یک موضوع ساده غیر اصلی اما اجرای آن به روشی که تمام دانش شما در دانشگاه را کسب کرده باشید نیز این کار را به همراه خواهد داشت.
موضوعی را انتخاب کنید که شخصاً شما را علاقه مند کند
با انتخاب سایر موضوعات و برنامه های مختلف توسط همسالان، امسال تنها خواهد بود. بیشترین چیزی که شما برای شرکت در یک روز به طور متوسط خواهید داشت ، صفحه نقاشی، لپ تاپ شما برخی از کتابها و قهوه است. متوجه خواهید شد که به طور مرتب با جدیدترین ویدیوی یا آهنگ جالب جدید حواس پرت می شوید. انتخاب موضوعی که علاقه مند به آن باشید اطمینان می یابید که برای کار کردن نیز الهام گرفته و انگیزه خواهید داشت که در نهایت باید به یک پروژه معماری نهایی عالی منجر شود.
دامنه خود را کوچک تنظیم کنید
بسیاری از دانشجویان با چیدن موضوعات یا موضوعاتی که بسیار گسترده هستند و بنابراین در یک بازه زمانی کوتاه تقریباً غیرممکن است وسوسه طبیعی انجام می دهند. نکته این است که با ساده ترین نسخه یک موضوع شروع کنید و بعداً اگر شرایط اجازه دهد پیچیدگی اضافی ایجاد کنید.
آنچه را که در آن مهارت دارید تشخیص دهید
هر دانشجو دارای یک سری مهارت ها و توانایی های منحصر به فرد است که با تجربیات خود و با پیروی از علایق خود کسب کرده است. هیچ کس در همه چیز خوب نیست. درک بی طرفانه از ظرفیت های خلاق و فنی و محدودیت های آن به شما امکان انتخاب موضوعی را می دهد که به بهترین وجه از تخصص شما استفاده کند.
آیا در این زمینه ادبیات کافی وجود دارد؟
یک پروژه پایان نامه معماری قبل از شروع فرآیند طراحی به مقدار زیادی مطالعه و تجزیه و تحلیل نیاز دارد و منبع اصلی اطلاعات مرجع برای یک دانشجوی کارشناسی معمولاً مطالعات یا تحقیقات موجود است. از این رو منطقی است که یک حوزه تحصیلی را انتخاب کنید که مقدار قابل توجهی از کارهای قبلی وجود داشته باشد. در دسترس بودن چنین کارهایی شما را قادر می سازد تا دانش بدست آمده را برای پیشنهاد یک پیشنهاد آگاهانه تجزیه و تحلیل مقایسه کنید نتیجه بگیرید و از آن استفاده کنید.
تعادل بین هنر و علم را برقرار کنید
دانشجویان معماری وقتی شروع به رمانتیک کردن پروژه های پایان نامه خود می کنند سرزنش آنها دشوار است اگر شما در نظر بگیرید که پروژه پایان نامه به عنوان اوج یک برنامه چند ساله تلقی می شود که ریشه آن در هنر و تئوری عمیق است همانطور که در فن آوری ساختمان ریشه دارد. اما یافتن موضوعی که تعادل این دو باشد ضروری است. موضوعی که بیش از حد انتزاعی به نظر می رسد.
در آینده می خواهید چه کار کنید؟
پروژه پایان نامه مهمترین قسمت نمونه کارها برای شما به عنوان یک فارغ التحصیل معماری تازه است که به دنبال کار در صنعت یا درخواست یک برنامه تحصیلات تکمیلی است. انتخاب موضوع نشان دهنده علاقه شما یا تجربه شما با یک موضوع خاص خاص است. از این رو هنگام انتخاب موضوع پایان نامه باید سعی کنید آن را با برنامه های خود برای آینده نزدیک هماهنگ کنید.
هدف حل یک مسئله دنیای واقعی است
در حالی که نظرات گسترده ای در مورد نقش ایده آل معماری در جامعه وجود دارد توافق کلی وجود دارد که کار معمار بر عملکرد جامعه تأثیر می گذارد و تکامل می یابد. در جهانی که با مشکلات جدی بی شماری مانند تغییر آب و هوا، رشد جمعیت و توزیع ناعادلانه منابع دست و پنجه نرم می کند به دانشجویان جوان معماری کمک می کند تا خود را با تصویر بزرگتر آشنا کنند و موضوعی را انتخاب کنند که حداقل هدف آن حل یک جریان فعلی باشد. مشکل اجتماعی – زیست محیطی از طریق مداخله در طراحی.
پروژه کامل طراحی باشگاه سوارکاری
که توسط وب سایت و فروشگاه معماری نوین آرچ برای شما ارائه شده است پروژه ای کامل با تمامی مدارک فنی و پاورپوینت و شیت های ارائه می باشد. این پروژه معماری کارشناسی همه مدارک موجود جهت ارائه را دارد. سایت باشگاه سوار کاری در زمینی مستطیلی شکل به مساحت 8000 متر مربع در نظر گرفته شده است. و از سمت جنوبی دارای 2 دسترسی می باشد.
مدارک موجود پروژه کامل طراحی باشگاه سوارکاری
- تمامی مدارک فنی و ترسیمی (شامل: سایت پلان، پلان های مبلمان شده ، نماها، برش ها و…)
- پاورپوینت ارائه
- رساله ای کامل با فرمت Word در 128 صفحه
- انیمیشن 2 دقیقه ای
- 25 رندر پست پرو شده و با کیفیت عالی
- دارای 4 شیت 70 * 100
- فایل لایه باز فتوشاپ

طرح های نهایی
پروژه طراحی موزه موسیقی
که توسط وبسایت و فروشگاه معماری نوین آرچ برای شما آماده و مهیا گردیده است پروژه ای کامل با تمامی مدارک فنی می باشد که در 2 طبقه طراحی گردیده و در حد ارائه در پایان نامه کارشناسی (طرح نهایی) می باشد. این پروژه دارای فایل رساله معماری بوده که در 183 صفحه با فرمت word برای شما آورده شده است. شما می توانید با خریداری این پروژه معماری پروژه ای کامل در حد ارائه در طرح نهایی را داشته باشید. در ادامه به معرفی کلی پروژه طراحی موزه موسیقی خواهیم پرداخت:
مدارک موجود پروژه طراحی موزه موسیقی
- مدارک فنی (پلان+ نما + برش+ سایت و…)
- رندهای با کیفیت V-ray
- پاورپوینت ارائه
- رساله معماری در 183 صفحه

طرح های نهایی