دانلود پاورپوینت معرفی مسجد جامع شهرک غرب تهران (22 اسلاید)
160,000 تومان
با توجه به اهمیت دین اسلام در بین مسلمانان روز به روز شاهد پیشرفت معماری مساجد هستیم با توجه به مصالح نوین و جدید در صنعت ساخت و ساز در سال های اخیر ساختمان های مساجد با مصالحی مناسب تر ساخته شده است یکی از بناهای مدرن بعد از انقلاب مسجد جامع شهرک غرب می باشد که در نوع خود شاخص می باشد. پاورپوینت معرفی مسجد جامع شهرک غرب تهران در 22 اسلاید توسط وب سایت معماری نوین آرچ ارائه شده است تا علاوه بر مشخصات و معرفی بنا شما به نقشه ها و پلان های معماری در قالب عکس دسترسی داشته باشید.
فهرست مطالب پاورپوینت
مسجد جامع شهرک غرب تهران:
- تاریخچه
- کاربری ها
- مساحت و ظرفیت مسجد
- بخش های فعال مسجد
بخش اول / کتابخانه امام علی:
- سال تاسیس کتابخانه
- ظرفیت کتابخانه
- مخزن کتابخانه
- فعالیت های فرهنگی
بخش دوم / صندوق قرض الحسنه:
- سال تاسیس صندوق قرض الحسنه
- موسس صندوق قرض الحسنه
- هیئت مندیره و نوع فعالیت صندوق قرض الحسنه
بخش سوم / درمانگاه خیریه حضرت امام علی بن ابیطالب(ع):
- درمانگاه در چه سالی به بهره برداری رسید؟
- مساحت درمانگاه
- خدمات ارائه شده در درمانگاه
بخش چهارم / سالن اجتماعات:
- سال احداث و بهره برداری
- مساحت سالن
- ظرفیت کلی تعداد متصرفین
- ظرفیت بانوان
- ظرفیت آقایان
بخش پنجم / کانون فرهنگی هنری:
با توجه به اهمیت دین اسلام در بین مسلمانان روز به روز شاهد پیشرفت معماری مساجد هستیم با توجه به مصالح نوین و جدید در صنعت ساخت و ساز در سال های اخیر ساختمان های مساجد با مصالحی مناسب تر ساخته شده است یکی از بناهای مدرن بعد از انقلاب مسجد جامع شهرک غرب می باشد که در نوع خود شاخص می باشد. پاورپوینت معرفی مسجد جامع شهرک غرب تهران در 22 اسلاید توسط وب سایت معماری نوین آرچ ارائه شده است تا علاوه بر مشخصات و معرفی بنا شما به نقشه ها و پلان های معماری در قالب عکس دسترسی داشته باشید.
فهرست مطالب پاورپوینت
مسجد جامع شهرک غرب تهران:
- تاریخچه
- کاربری ها
- مساحت و ظرفیت مسجد
- بخش های فعال مسجد
بخش اول / کتابخانه امام علی:
- سال تاسیس کتابخانه
- ظرفیت کتابخانه
- مخزن کتابخانه
- فعالیت های فرهنگی
بخش دوم / صندوق قرض الحسنه:
- سال تاسیس صندوق قرض الحسنه
- موسس صندوق قرض الحسنه
- هیئت مندیره و نوع فعالیت صندوق قرض الحسنه
بخش سوم / درمانگاه خیریه حضرت امام علی بن ابیطالب(ع):
- درمانگاه در چه سالی به بهره برداری رسید؟
- مساحت درمانگاه
- خدمات ارائه شده در درمانگاه
بخش چهارم / سالن اجتماعات:
- سال احداث و بهره برداری
- مساحت سالن
- ظرفیت کلی تعداد متصرفین
- ظرفیت بانوان
- ظرفیت آقایان
بخش پنجم / کانون فرهنگی هنری:
- برنامه های فرهنگی برای اهالی محله

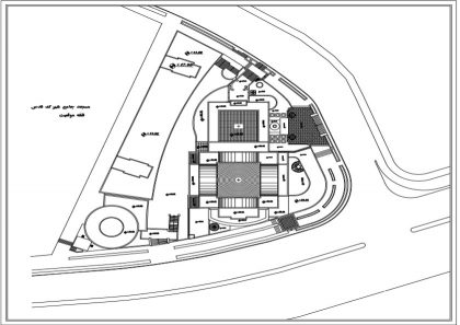
مسجد جامع شهرک غرب
تاریخچه مسجد جامع شهرک غرب تهران:
تاریخچه ساخت مسجد جامع شهرک غرب تهران و مجموعه متعلق به آن، به سال 1370 هجری شمسی برمی گردد. زمینی به مساحت 6000 متر مربع با ساختمان محقر داخل آن که در آن زمان توسط بزرگان علما، خصوصاً حضرت آیت الله شیرازی مدّظله، با عنایات خاصه ایشان و ریاست مرکز امور مساجد با اختیار تام به حقیر واگذار گردید تا آن گونه که صلاح است ساختمان این مجموعه را شروع نمایم.
فعالیت ها از همان زمان با اخذ مجوزها خصوصا مجوز تجاری، که واقعا زحمات زیادی بدین جهت متحمل شدیم، آغاز شد. نقشه قبلی مسجد با نقشه جدید در سال 1372 با طراحی جناب آقای مهندس طوسی، جایگزین گردید و با کمک رئیس وقت بانک ملت، که با اعطای وام کمک بزرگی به احداث مسجد نمود، شروع به کار کردیم. این وام در اختیار هیئت امناء مسجد برای همین امر قرار گرفت. در کنار هیئت امناء تشکیل گروههای تخصصی شامل کمیته های فنی، فروش و اجاره و نیز واحد حسابداری از اقداماتی بود که در همان ابتدا کار انجام شد.

مسجد جامع شهرک غرب
ظرفیت مسجد جامع شهرک غرب:
مسجد جامع شهرک غرب با ظرفیت 400 نفر سالن اختصاصی آقایان و 300 نفر سالن اختصاصی خانمها به صورت مبله آماده برگزاری مراسم ترحیم است. این بنای رفیع و با عظمت اسلامی با همت و هنرنمایی متخصصین و هنرمندان کشور به گونه ای طراحی و ساخته شده که همچون آفتابی در شمال غرب تهران درخشیده و نورافشانی می کند.
بخش های مهم مسجد:
این مسجد در حال حاضر با گذشت نزدیک به 30 سال از ساخت به عنوان یکی از مساجد فعال در شمال غرب تهران شناخته می شود که بخش های مختلفی همچون هیات امنا، دفتر امام جماعت، کتابخانه امام علی(ع)، واحد فرهنگی، صندوق قرض الحسنه، درمانگاه امام علی(ع) و سالن های اجتماعات و کانون فرهنگی هنری در آن فعالیت می کنند. در ادامه به تمامی این بخش ها اشاره ای خواهد شد.
بخش اول / کتابخانه امام علی:
کتابخانه عمومی امام علی (ع) وابسته به مسجد جامع شهرک قدس مهرماه سال 1384 تاسیس شد. مساحت کتابخانه در ابتدا حدودا 800 مترمربع بود. اما با انجام تغییرات و تعمیرات مساحت آن کاهش یافت و فضای فعلی کتابخانه حدودا 350 مترمربع است که ظرفیت حدود 300 نفر در خود را دارد. در مخزن کتابخانه امام علی (ع) حدود ۹ هزاز نسخه کتاب با موضوعات مختلف اعم از مذهبی، تاریخی، ادبیات و … وجود دارد که به وسیله نرم افزار کتابخانه ای کاوش فهرست نویسی و جستجو و بازیابی منابع موجود در کتابخانه صورت می گیرد. فعالیت های فرهنگی این مسجد در 4 گروه علوم و معارف اسلامی، گروه هنری، آموزش غیرحضوری و گروه تبلیغات تقسیم و دنبال می شود.

نمای شرقی مسجد جامع شهرک غرب
مطالب مفید خارج از پاورپوینت جهت کمک هرچه بهتر
تحلیل معماری مسجد جامع شهرک غرب: تجلی مدرنیسم در فضای قدسی
مسجد جامع شهرک غرب تهران، اثر برجسته معمار فقید، عبدالعزیز فرمانفرمائیان، نه تنها یک بنای مذهبی، بلکه یک بیانیه معماری قدرتمند است. این مسجد که در قلب یکی از مدرنترین مناطق تهران قرار گرفته، با زبان صریح و جسورانه خود، تعریفی نوین از فضای عبادی ارائه میدهد و از کلیشههای رایج در مساجد سنتی فاصله میگیرد. این بنا نمونهای درخشان از تلاش برای یافتن جوهر و معنای نیایش در کالبدی مدرن و انتزاعی است.
فلسفه اصلی طراحی این مسجد، “پالایش فرم و بازگشت به اصل” است. فرمانفرمائیان با حذف عامدانه تزئینات رایج و عناصر نمادین سنتی مانند کاشیکاریهای پیچیده، به دنبال خلق فضایی خالص و متمرکز بر جوهر عبادت بود. ایده اصلی، رسیدن به یک معنویت عمیق از طریق سادگی، صداقت در مصالح و عظمت ساختاری بود. در این رویکرد، خودِ سازه و فضا به اصلیترین عنصر بیان معماری تبدیل میشوند و هرگونه آرایه اضافی، مانعی برای درک خالص فضا تلقی میگردد. این مسجد، پاسخی به نیاز انسان معاصر برای ارتباطی بیواسطه و عمیق با معبود در یک کالبد امروزی است.
۲. تحلیل فضایی و برنامه فیزیکی
ساختار فضایی مسجد جامع شهرک غرب بر پایه یک هندسه ساده و خوانا شکل گرفته است.
- شبستان (سالن اصلی نماز): نقطه اوج طراحی، شبستان وسیع و یکپارچه آن است. مهمترین ویژگی این فضا، عدم وجود ستون در داخل آن است که به لطف یک سیستم سازهای پیشرفته محقق شده. این فضای باز و گسترده، حس وحدت، برابری و اجتماع را در میان نمازگزاران تقویت میکند و هیچ مانع بصری بین فرد و محراب وجود ندارد.
- عرصهبندی: حرکت از فضای پر هیاهوی شهری به آرامش درون، به زیبایی طراحی شده است. ورودی اصلی، فرد را به یک حیاط (صحن) وسیع هدایت میکند که به عنوان یک فضای انتقالی و مکث عمل کرده و ذهن را برای ورود به شبستان آماده میسازد.
- خوانایی فضا: برخلاف بسیاری از مساجد سنتی با سلسله مراتب پیچیده، در اینجا تمام اجزا به وضوح قابل درک هستند. حیاط، ورودیها و سالن اصلی به شکلی منطقی و کارآمد در کنار هم قرار گرفتهاند.
۳. سازه، متریال و تکنولوژیهای به کار رفته
شکوه و عظمت این مسجد، بیش از هر چیز مدیون صداقت سازهای آن است.
- سازه: سیستم پوشش سقف شبستان، یک شاهکار مهندسی است. این سقف توسط خرپاهای عظیم بتنی (Trusses) پوشیده شده که دهانهای بزرگ را بدون نیاز به ستون میانی ممکن ساختهاند. این سازه عظیم نه تنها پنهان نشده، بلکه با افتخار به نمایش گذاشته شده و به هویت اصلی بنا تبدیل گشته است.
- مصالح: انتخاب بتن نمایان (Exposed Concrete) به عنوان مصالح غالب، تصمیمی جسورانه و معنادار بود. بتن با ظاهر سرد، خشن و خالص خود، نمادی از استحکام، ابدیت و پرهیز از تجمل است. این انتخاب، تضادی آگاهانه با تزئینات ظریف و رنگارنگ معماری سنتی ایجاد میکند و تمام توجه را به فرم و ساختار جلب مینماید. در کنار بتن، از سنگ و شیشه نیز به صورت محدود و هوشمندانه استفاده شده است.
۴. نور، اقلیم و پایداری
نور در این مسجد نقش یک عنصر معنوی و هدایتگر را ایفا میکند.
- نور طبیعی: نورپردازی شبستان به شکلی غیرمستقیم و کنترلشده صورت میگیرد. نور از طریق بازشوهایی که در میان خرپاهای بتنی سقف تعبیه شده، به داخل میریزد و فضایی آرام، روحانی و به دور از خیرگی ایجاد میکند. این بازی نور و سایه بر روی سطوح بتنی، به فضا عمق و پویایی میبخشد.
- پاسخ به اقلیم: حیاط وسیع مسجد، علاوه بر کارکرد عبادی و اجتماعی، نقشی مشابه حیاط مرکزی در معماری سنتی ایران ایفا میکند و به تلطیف هوا و ایجاد یک خرد اقلیم مطلوب در مجموعه کمک میکند.
۵. جزئیات شاخص و ویژگیهای منحصر به فرد
شاخصترین ویژگی این بنا، حذف آگاهانه گنبد و مناره به شکل سنتی آنهاست. این تصمیم، رادیکالترین حرکت معمار در جهت فاصله گرفتن از تقلید فرمی و تمرکز بر کارکرد اصلی مسجد است. در این طرح:
- سقف عظیم بتنی، خود به نماد آسمان و پوشش محافظ الهی تبدیل شده و جایگزین گنبد سنتی میشود.
- یک برج ساعت ساده و مدرن در گوشه حیاط، وظیفه دعوتکنندگی مناره را به شیوهای امروزی بر عهده میگیرد. محراب نیز به دور از هرگونه تزئین، به صورت یک فرورفتگی ساده در دیوار بتنی تعریف شده که بر خلوص و تمرکز فضا میافزاید.
مسجد جامع شهرک غرب یک نمونه درسی بینظیر برای دانشجویان است. این بنا نشان میدهد که چگونه میتوان ضمن حفظ روح و کارکرد یک فضای سنتی، آن را با زبان و تکنولوژی روز بازآفرینی کرد. این پروژه، درس بزرگی در زمینه اصالت فرم، بیان سازهای و مینیمالیسم معنوی است و ثابت میکند که قدرت تأثیرگذاری یک فضای معنوی، لزوماً در تزئینات آن نیست، بلکه در خلوص، تناسبات و کیفیت فضایی آن نهفته است.
پیشنهاد ویژه:
شما می توانید برای سفارش پایان نامه و پروپوزال در مقطع کارشناسی و کارشناسی ارشد به وب سایت معماری نوین پروژه مراجعه نمایید.
محصولات مشابه
دانلود پاورپوینت اسلامی مسجد آقا بزرگ کاشان
فهرست مطالب
- گـزارش تـوصيفـي
- مسجـد و مـدرسـه آقـابـزرگ
- گنبـد كتيبـه هـا
- آرامـگاه خـانـدان نـراقـي
نقشه های معماری
- پلان طبقه همکف
- پلان طبقه زیر زمین
- برش و نمای ضلع جنوبی
- برش A-A
- نمای جنوبی
دانلود پاورپوینت بررسی عوامل موثر در زیبایی شهری
متن پاورپوینت بررسی عوامل موثر در زیبایی شهری
- عوامل موثر در نازیبایی شهرها
- زیبا سازی
- روش های ایجاد چشم انداز مطلوب در زیباسازی شهر
- مبلمان شهری
- گرافیک محیطی ومبلمان شهری
- ایجاد نظم و هماهنگی
- علائم وتابلوهای راهنمایی
- تبلیغات شهری
- نمای ساختمان ها

پاورپوینت معماری بررسی عوامل موثر در زیبایی شهری
دانلود پاورپوینت بررسی معماری بیونیک
فهرست مطالب پاورپوینت بررسی معماری بیونیک:
- تعامل انسان - محیط
- تعاملات محیطی
- تعامل طبیعت - معماری
- انسان - طبیعت
- تكوين اثر هنري
- دسترسی همگاني
- اثر و مخاطبان
- معماری بيونيک
- مقدمه
- نمونه های معماری بیونیک در عصر حاضر
- برج بیونیک در چین
- برج ستاره شناسی در قطر
- موزه گوگنهایم در دانمارک
- ورزشگاههای پکن
- تالار کنسرت تنریف در اسپانیا اثر کالاتراوا
- موزه هنر میلواکی
- میلواکی، ویسکانسن، ایالت متحده
- برج سنجاقک – نیویورک
- نتیجه گیری
دانلود پاورپوینت چوب در معماری (انسان، طبیعت، معماری)
فهرست مطالب مورد بحث در پاورپوینت چوب در معماری:
- تاریخچه
- چوب شناسی
- احساسهای عنصر چوب
- تقسیم بندی چوبها
- سخت چوبها
- انواع چوب از نظر فصل رویش:
- انواع چوب از نظر وزن مخصوص
- انواع درختان جنگلی
- راش
- توسکا
- افرا
- كاج ايراني (روس)
- زبان گنجشك (ون)
- درخت لاله درختي
- ماهاگوني يا آکاژو
- ملچ
- گردو
- مزایای چوب
- محافظت کننده های چوب
- خواص فیزیکی چوب
- وزن مخصوص چوب
- رنگ
- تخته خرده چوب یا نئوپان
- MDF
- مواد اوليه موردنياز:
- روش توليد و تشريح فرآيند
- موارد مصرف چوب
- دهکده چوبی نیشابور
- منابع

چوب در معماری
دانلود پاورپوینت ضوابط طراحی بیمارستان (دیاگرام و ریز فضاهای)
فهرست مطالب مورد بحث در پاورپوینت بررسی دیاگرام و ریز فضاهای بیمارستان :
- تعریف بیمارستان
- تاریخچه بیمارستان
- بیمارستان های اروپاییان در ایران
- ظوابط طراحی بخش اورژانس بیمارستان
- چیدمان عملکردهای مختلف در بخش اورژانس
- نحوهء دیگر چیدمان فضاهای اورژانس و ارتباطات
- دیاگرام استقرار اورژانس در سایت

بیمارستان
دانلود پاورپوینت مرمت مدرسه تقوی گرگان
فهرست مطالب پاورپوینت مرمت مدرسه تقوی گرگان
- مقدمه
- پیش گفتار
- موقعيت جغرافياي شهر و منطقه
- موقعيت محلي اثر و دلايل اهميت آن
- درباره ی مدرسه
- خصوصیات معماری اثر
- آسیب شناسی
- طرح مرمت
- ارائه مدارک فنی (سایت پلان، پلان طبقه همکف، پلان طبقه اول، نمای شمالی و ...)

پلان مدرسه تقوی گرگان
دانلود پاورپوینت معماری ارگانیک (طبیعت گرا)
فهرست مطالب مورد بحث در پاورپوینت معماری ارگانیک (طبیعت گرا):
- مفهوم ارگانیک
- تاریخچه معماری ارگانیک
- مبانی نظری معماری ارگانیک
- معماران برجسته معماری ارگانیک
- آثار برجسته سبک ارگانیک
- نتیجه گیری
آثار برجسته سبک ارگانیک
- خانه وینسلو
- خانه مارتین
- معبد وحدت
- باغهای میدوی
- خانه کافمن
- خانه کافمن
- موزه گوگنهایم
- خانه روبی
- خانه لارکین
- ...

خانه ویلیتس
دانلود پاورپوینت معماری اسلامی محراب
فهرست مطالب پاورپوینت معماری اسلامی مهرآب:
- بررسی نمادهای معماری ایرانی در قبل و بعد از اسلام
- مهرآب
- چليپا
- چارسو
- تدفین مردگان به جهت نیمروزی برای احترام به قداست مهر
- چهارطاق
- چهارایوان
- چهارصفه
- چهارباغ
- چهاردیواری
- مهرآب در معماری ایرانی

مهرآّب

دیدگاهها
هیچ دیدگاهی برای این محصول نوشته نشده است.